






roots 巣鴨 本店
種別:Interior
用途:Hair salon (+nail salon)
場所:Bunkyo, Tokyo
面積:65㎡
竣工:2024
撮影:Keigo Kubota
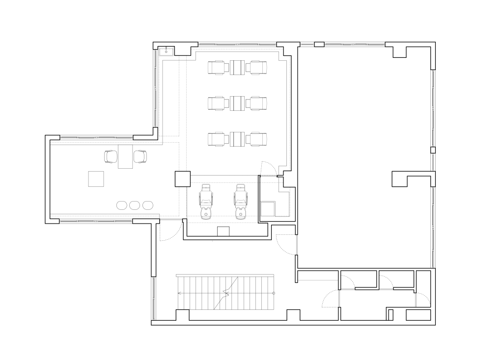
Framework Area |躯体の域
巣鴨の雑居ビル一室に構える美容室の内装設計である。
限られた予算内で既存空間を生かした在り方が出来ないかと考え、既存構造の柱梁の近似寸法で柱のような施術面や梁のような小上がりを設けることで人の拠り所を与えた。施術面は四面を鏡面とすることで美容室特有の構成である鏡⇋施術者の方向性を打ち消し、集まり離れるような距離感のみで立ち現れる施術スペースとしている。
壁の仕切りがなくとも躯体が領域を分節し、家具や植栽、人が対等となる関係性を作り出した。