









反転増築 -看板広告による道頓堀の都市景観再編-
種別:新築
用途:複合施設
構造:S造
場所:大阪府 大阪市 道頓堀
期間:2021年-2022年
受賞:近畿大学卒業設計展 佳作 芦田賞, 第45回学生設計優秀作品展(レモン展) 出展 レモン賞
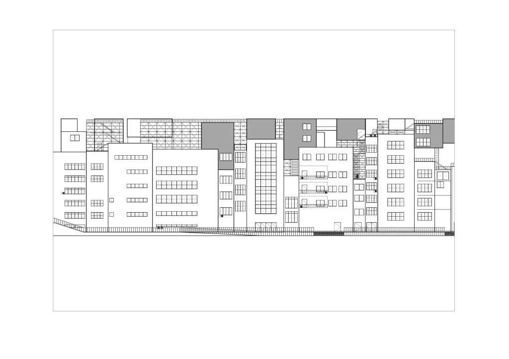
芝居文化の発祥地であった道頓堀は、看板広告による資本主義に占拠され、消費社会に受動的な形態を取るようになった。その結果、看板広告によるアイレベルでの路上空間のみが機能し、建築は劣勢になっているのではないだろうか。
本設計はこの地の特徴とされる看板広告をボリューム化させることで新しい看板広告のあり方を提案するとともに、空間化させることで屋上に新たな価値を付与し、屋上の連続性から建築群を統括する。
これによりファサードと看板という平面的な情報媒体のコントラストと融合が起こり、内外では異なる時間軸で人と情 報が更新される。看板広告によって道頓堀の都市景観を再編する計画である。